Storrd, Camden

 
 

STORRD, CAMDEN

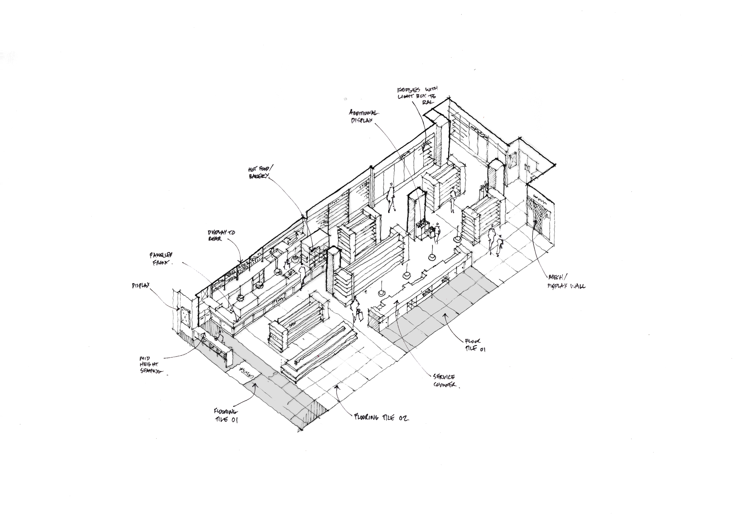
Storrd Camden introduces an entirely new concept in British convenience retail, with a new concept and design created to challenge convention and elevate the everyday shopping experience. From the moment customers step through the door, they are immersed in a contemporary, thoughtfully crafted environment that feels distinctly different from the traditional grab-and-go format: welcoming, elevated and intuitively laid out.

Anchored by its striking ultraviolet purple, chosen to cut through the visual noise of the British high street, the identity runs seamlessly throughout the space, from signage and packaging to fixtures and in-store touch points.

Fresh, high-quality produce takes centre stage, complemented by an exceptional food-to-go offering that rivals dedicated eateries, from hot, chef-prepared meals to artisan sourdough and thoughtfully curated breakfast options. At its core, the design balances functionality with inspiration, encouraging discovery while remaining effortless to navigate. This is paired with a progressive approach to technology, ensuring a seamless experience whether customers are shopping in-store or remotely. Every detail at Storrd Camden has been considered through the lens of the customer, creating a space that is as responsive and flexible as it is refined—setting a new benchmark for British speciality retail.

Photography by Rebecca Hope